|
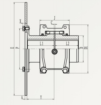
蛇簧聯軸器的結構緊湊、外形尺寸小,工作可靠,適用于連接兩同軸線的中、大功率的傳動軸系。具有補償兩軸相對偏移的減震、緩沖性能。工作溫度為-30℃-+150℃,傳遞公稱轉矩52-931000N.m.一般兩軸相對的許用位移量:軸向為4-20mm;徑向為0.5-3mm;角位移為1°15′。蛇簧聯軸器廣泛應用于各工業領域。
帶蛇形彈簧,可在不移動連接設備的情
況下進行更換。
![]() T31全間距型聯軸器 T50導向型聯軸器 完整的中間段可以脫離,便于對連接 用于主軸傳動連接,可以替換單邊嚙合齒形聯 設備的軸承和密封進行服務。泵應用 軸器使用抗回轉扭矩,成本更低。 的理想選擇。 ![]() |






